3734 ERLANGER DRIVE NW

$779,900 | 1935 Sq Ft
West | Edgemont   |   3734 ERLANGER DRIVE NW
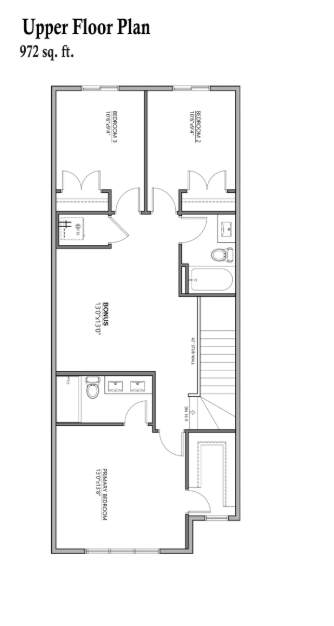
  • BEDS 3
  • BATHS 3
  • GARAGE 2 car garage
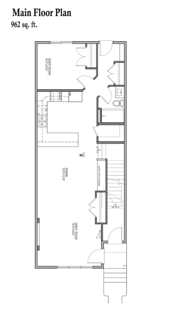
  • STYLE Legal Basement Suite | Above Garage Suite | Single Family

The community of Edgemont seamlessly blends tranquility with urban accessibility, creating an ideal haven for a busy family life. This 1,935 sq. ft features 3 elegant bedrooms on the upper floor, 3 baths, and a double front attached garage. The home’s design, which includes a main floor bedroom, spacious great room, and a custom mudroom in the back, highlights its spaciousness and attention to detail. Culinary enthusiasts will value the premium custom cabinetry, quartz countertops, and a rough-in for a gas cooktop in the kitchen.

Complete with 9′ ceilings, open-to-above great room, a two-bedroom legal secondary and additional garage suite located on top of the garage adds versatility, making it perfect for evolving family needs.
Interested in learning more about this home? For more information, call or text us at 780-906-7000 or email Blaine@fivestarhomes.ca.

 

Estimated completion July 2026.

Features & options

Features & upgrades include:

  • Double front attached garage
  • Main floor and basement foundation walls at a 9′ height
  • Main floor den
  • Custom mudroom with bench and lockers
  • Premium painted MDF cabinets with upgraded pulls and handles
  • Quartz countertops throughout the house
  • Quartz backsplash in the kitchen
  • Walk through pantry
  • Three bedrooms with a large bonus room
  • Triple pane windows
  • Two bedroom legal secondary suite with second furnace, full bathroom, appliances and laundry
  • Concrete sidewalk to private basement side entry