The Ivory

26' Pocket Lot  |   2824 Sq Ft
COMMUNITIES:  Brenton at Glenridding | Westview at Chappelle Gardens
  • BEDS 3
  • BATHS 4
  • GARAGE Double Front Attached
  • STYLE Optional Legal Suite | Single Family

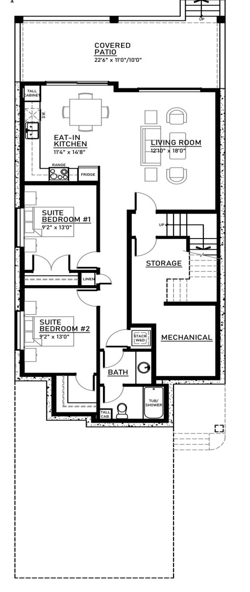
Introducing the Ivory floor plan that can be built on 26′ pocket lots. This elevated plan features 3 bedrooms 4 full baths and an open to above living room.

The custom mudroom features lockers and a bench that follow through a spacious prep kitchen. The primary bedroom maximizes privacy with separation from the bedrooms with the central bonus room.

Features & options

  • Double front garage
  • Walk through prep kitchen pantry to custom built ins in the mudroom
  • Main floor and basement includes 9ft ceilings
  • Open to above living room with electric fireplace
  • Quartz countertops throughout
  • Luxury vinyl plank flooring main floor
  • Laundry room
  • Upstairs central bonus room
  • Double sinks
  • Separate tub and shower in ensuite
  • Separate side entrance
View:
  • Main Floor 1329 Sq. Ft.
  • Upper Floor 1494 Sq. Ft.
  • Basement 1148 Sq. Ft.