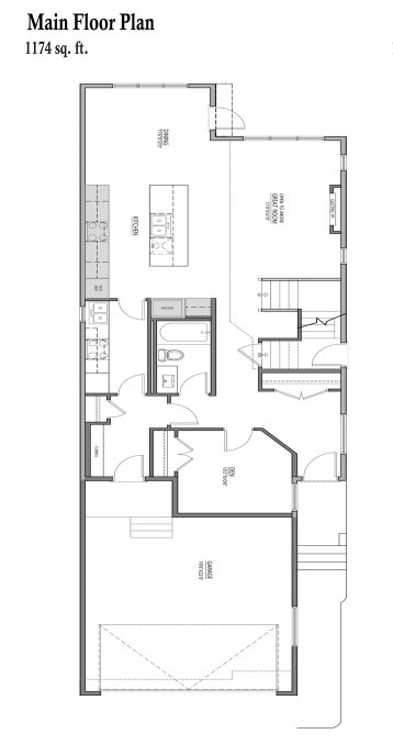
• Double front attached garage
  • Main floor den/office
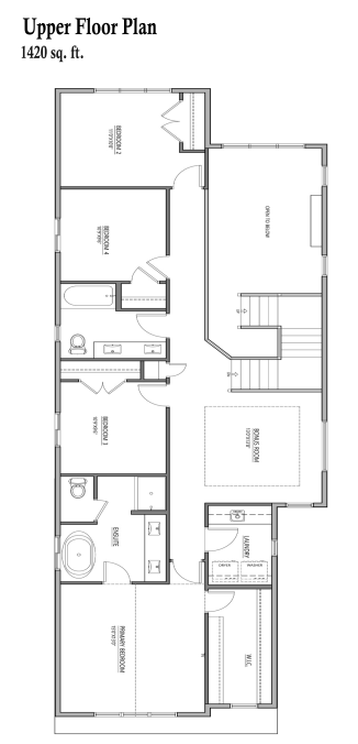
  • Main floor and basement includes 9ft ceilings
  • Open to above living room with electric fireplace
  • Walk through pantry with optional spice kitchen
  • Gas range in the kitchen
  • Subway tile for kitchen backsplash
  • Quartz countertops throughout
  • Luxury vinyl plank flooring main floor and basement
  • Custom mudroom with bench and lockers
  • LED lighting throughout
  • Separate side entrance with concrete sidewalk
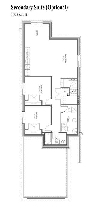
  • Optional City approved legal suite with separate furnace, appliance package and laundry