258 Paterson Link SW

$ 811,000 | 2539 Sq Ft
Paisley at Heritage Valley   |   258 Paterson Link SW
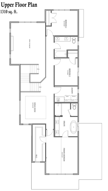
  • BEDS 3
  • BATHS 3
  • GARAGE 3 car garage
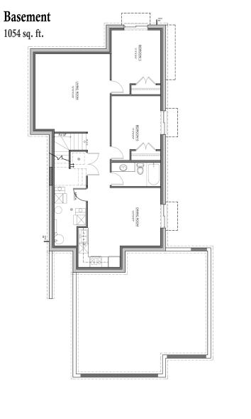
  • STYLE Optional Legal Suite | Single Family

Discover your perfect home in the lively and diverse community of Paisley, located in Southwest Edmonton’s Heritage Valley. This impressive 2,539 sq. ft. home blends modern design with everyday comfort. Step into this elegant 3-bedroom property and enjoy the sense of openness created by 9’ ceilings on the main floor with an open to above living room. A thoughtfully designed mudroom with built-in lockers and a bench helps keep your entryway clutter-free. At the heart of the home, the kitchen is a chef’s delight, featuring quartz countertops, a gas cooktop, and a spacious walk-through pantry. For added flexibility, the home includes the option of a legal secondary suite with two bedrooms, a full bath, and its own furnace—ideal for extended family or generating rental income. Includes its own private entrance and walkway.

Paisley offers quick connections to South Edmonton amenities like Windermere, South Edmonton Common, Anthony Henday Drive, and the airport. Known for its pet-friendly vibe, the community features off-leash dog parks, scenic walking paths, and abundant green space.

For more information or to schedule a tour, contact our team at  780-903-1313 or email us at sales@fivestarhomes.ca

Features & options

Features & Upgrades:

  • Front attached 3 car garage
  • Main floor den
  • Main floor and basement includes 9′ ceilings
  • Custom mudroom with bench and lockers
  • Quartz countertops throughout the home
  • Quartz backsplash for kitchen and subway tile for pantry backsplash
  • Painted MDF cabinetry with upgraded pull and handles
  • Walk-through pantry
  • 3 bedroom with large bonus room on upper floor
  • Luxury vinyl plank flooring for main and basement
  • Carpet for second floor and stairs
  • LED lighting throughout the home
  • Gas range for main kitchen
  • Triple pane windows
  • Premium siding colors
  • Optional two bedroom legal secondary suite also includes a second furnace and full bathroom
  • Concrete sidewalk to private basement side entry