1866 Eaton Wynd NW

$710,999 | 2251 Sq Ft
Edgemont   |   1866 Eaton Wynd NW, Edmonton, AB
  • BEDS 3
  • BATHS 3
  • GARAGE 2 car garage
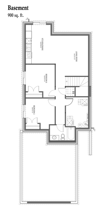
  • STYLE Optional Legal Suite | Single Family
780-906-7000 • Blaine@fivestarhomes.ca.

Features & options

Features & upgrades include:

  • Double front attached garage
  • Main floor and basement foundation walls at a 9′ height
  • Main floor den highlights a beautiful glass wall
  • Custom mudroom with bench and lockers
  • Premium painted MDF cabinets with upgraded pulls and handles
  • 8′ doors on the main floor
  • Quartz countertops throughout the house
  • Quartz backsplash in the kitchen
  • Walk through pantry
  • Three bedrooms with a large bonus room
  • Glass railings from main to upper floor with carpeted stairs
  • LED lighting throughout the home including on every stair
  • Rough in for gas cooktop in the main kitchen
  • Triple pane windows
  • Optional bi-fold patio door can be installed
  • Optional covered rear deck
  • Optional two bedroom legal secondary suite with additional furnace, full bathroom and laundry